Reality

Řadový dům

Homole

Image

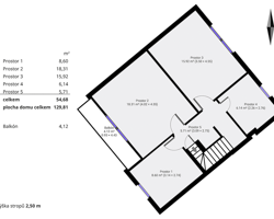
Nabízíme k prodeji řadový dům se samostatnou garáží a zahradou, v klidné části obce Homole, příjemných 8km jižně od Českých Budějovic. Obytná plocha domu činí 129 m2. Dispozice domu nabízí vstupní halu, obývací pokoj s kuchyní, která je vybavena moderními kuchyňskými spotřebiči a koupelnu s rohovou vanou a WC.

Široké schodiště nás přivede do prvního patra kde najdeme prostornou ložnici s balkonem, dětský pokoj, pracovnu a místnost na zbudování další koupelny.

Dům disponuje prostornou pochozí půdou, která je rovněž přístupná po schodišti a skýtá tak možnost výstavby další obytné plochy.

Image

Dům je podsklepený 17 m2. Ve sklepě je kotel jak na plyn tak na tuhá paliva. Celý objekt prošel rozsáhlou rekonstrukcí / nová plastová okna, zateplení, fasáda, rozvody vody, odpady, elektřina, izolace střechy

Vlastní zahrada je umístěna naproti domu s plochou 151 m2.



Garáž cca 50m od domu.

Možnost převzetí hypotéky za velmi výhodných podmínek.

Galerie

Project Name

Project Name

Project Name

Project Name

Project Name

Project Name

Project Name

Project Name

Project Name

Project Name

Project Name

Project Name

Project Name

Project Name

Project Name

Project Name

Václav Petrovitz

Realitní makléř

CENA

Cena: 6 950 000 Kč

POPIS DOMU

Kategorie : Domy a vily

Druh domu : Rodinný dům

Typ domu : Patrový

Stav domu : Velmi dobrý

Odpad: Kanalizace

Plyn: Plynovod

INFORMACE O NABÍDCE

Poloha objektu: řadový

Druh objektu: Smíšená

Umístění objektu: Klidná část obce

Dispozice: 4 pokoje

Vybavení: Částečně

Zastavěná plocha m2: 99/p>

Užitná plocha m2: 110

Plocha parcely m2: 250

Počet podlaží objektu: 3

Stavba: Rodinný dům

Počet bytů: 1

Rok kolaudace: 2000

PRŮKAZ ENERGETICKÉ NÁROČNOSTI BUDOVY

Třída : G - Mimořádně nehospodárná

Vyhláška : 148/2007 Sb.


Další reality

Rodinný dům
Besednice
Stavební pozemek
Frymburk - Posudov

Kontakt na mě

Náměstí Jířího z Poděbrad 1

+420 608 513 786

vaclav.petrovitz@tbreality.cz

© Reality Petrovitz. All Rights Reserved. Designed by HTML Codex